The Town Council hears the benefits and detractions of potential plans to redevelop the former Peckham and Oliphant school properties before deciding to let the designs move to the next level. #MiddletownRI
FOR IMMEDIATE RELEASE
CONTACT: Matt Sheley at (401) 842-6543 or msheley@middletownri.com

PROS & CONS OF AFFORDABLE HOUSING PLAN AIRED
MIDDLETOWN, R.I. (JANUARY 18, 2023) – The Town Council heard the positives and negatives of affordable housing at the former Peckham and Oliphant school buildings.
At a well-attended meeting Wednesday night in Town Hall, everyone in attendance seemed to agree that more affordable housing was needed, but the plans now before local leaders were a stretch.
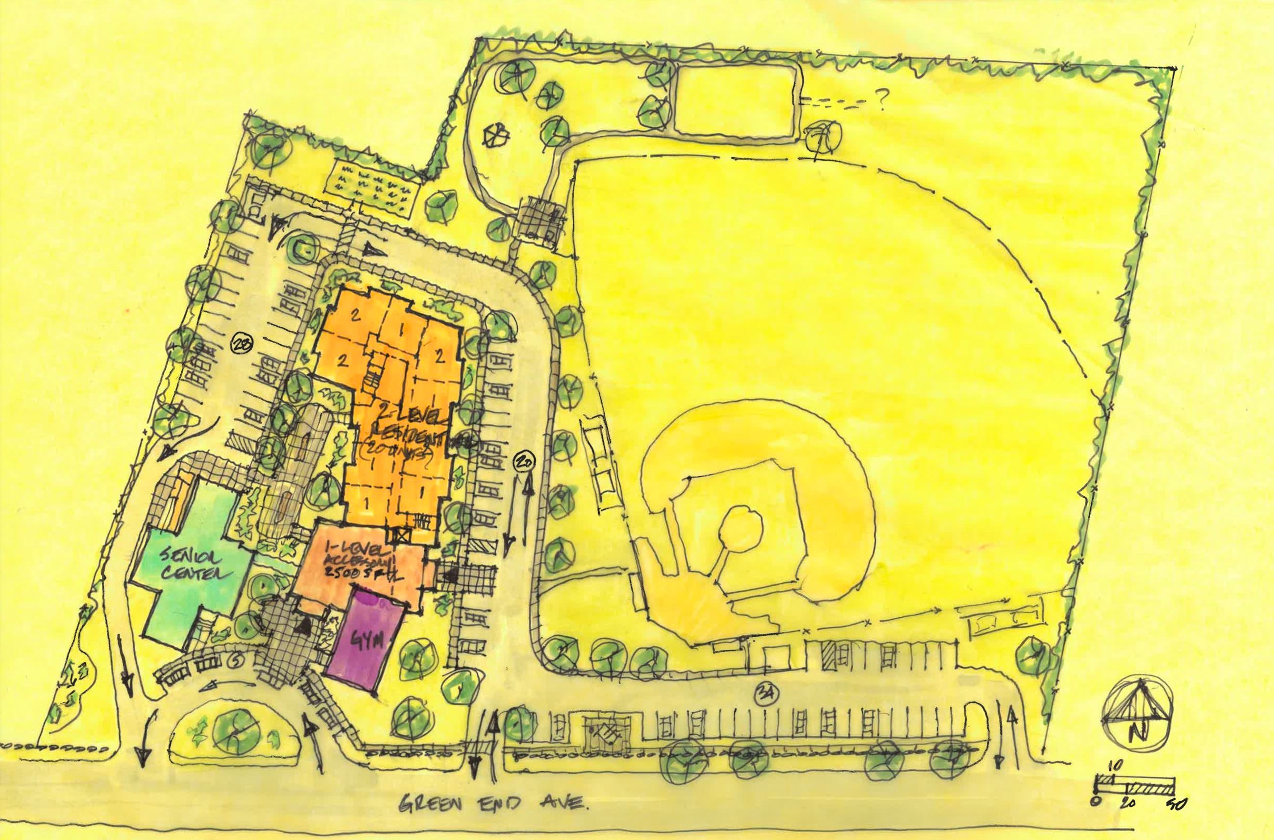
Under the latest proposal, up to 40 units would be put at 26 Oliphant Lane, with another 20 units at 650 Green End Ave. next to the Middletown Senior Center.
Council President Paul M. Rodrigues said no final decisions had been made and there were no easy answers, but Middletown had to pull together. After two hours of discussion, the council unanimously approved sending the plans to a 30 percent phase, which would provide more specifics without giving the proposal final approval.
“Why bother doing this if we’re not helping Middletown people…” Rodrigues asked. “We’re elected to take care of our people the best we can and that’s what we’re trying to do. I know there are folks here who don’t want it. I get that and we understand that.
“When I grew up here…those were all farms. All Green End Avenue was all farms. There were no houses there. There was no development like it is now. Do you think we wanted that? We didn’t want that. We’d love to have it still be farms, but we’re a community and we do things together. Communities change over time and you have to adapt to that and try to be as proactive as you can for that to meet the needs of that community.”
According to a Dec. 7, 2022 piece in the Wall Street Journal, the housing market now is especially tough.
The story “What’s Going On With The Housing Market?” detailed how higher interest rates and low inventory has gridlocked housing sales across the nation.
The result was a sharp housing “slump” over the summer, something that’s continued into the fall and winter as mortgage rates went to 20 year highs.
The news is no different in Middletown. Town leaders and residents typically cite the rising cost of housing as the No. 1 issue facing the community.
At her first meeting on the council, Emily Tessier mentioned how younger people like her and her friends have a tough time staying in Middletown because there aren’t enough choices and those that exist are far out of their budgets.
The online app Realtor.com lists four homes for sale today in Middletown under $500,000, with a total of 16 on the market. The high is $7.925 million for a four-bedroom on Kane Avenue.
That’s not to say that new housing isn’t on the horizon in Middletown. There are currently about 500 units of new housing already okayed or seeking approval to move forward. Of those, about 200 are projected to be classified “affordable” or “workforce” housing.
If the projects progress, town officials have said local tax dollars will not be used to pay for the work. Rather, the cost of the affordable housing facilities will be covered through federal programs that support affordable housing in communities like Middletown.


The town affordable housing consultant Frank Spinella said the way the project is currently envisioned, Middletown would retain ownership of the proposed development sites and arrange long-term leases with developers.
According to the current data, Spinella said 5.16 percent of Middletown’s housing was considered affordable, or about 355 units. Under state regulations, Spinella said Middletown is supposed to have at least 10 percent, or another 300 units more.
Spinella said state figures showed renters would need to earn about $68,000 annually to afford such an apartment.
Late in the meeting, Spinella said the project could have been pushed through by the town without any input from residents and neighbors. But because the current council — and 2020-2022 council — made it clear they wanted the project to fit into the community, the project is going through the normal process.
Oliphant Lane resident Scott Jestings said redeveloping the Oliphant School site would trigger problems on Oliphant Lane — downstream on Forest Avenue and Commodore Perry Village as well.
“I’m just really, really concerned with them doing anything with Oliphant School because of the water,” Jestings said.
Planning Board member Arthur Weber said the affordable housing issue was important and not going away. Weber also said regardless of what the regulations say, he couldn’t understand why Oxbow Farms and trailer homes were not considered “affordable.”
Barton Lane resident Laurie Bradley said she couldn’t understand why the Linden Park property wasn’t being considered anymore for affordable housing when it seemed far better than the Oliphant Lane location.
“Affordable housing is very important in this town, but I believe Oliphant Lane is a poor site,” Bradley said.
Middletown High Class of 2019 graduate Chris Bove said like Tessier has said, most young people were not being considered enough when it came to the affordable housing equation.
“To say you just want this for seniors because they have the highest need simply isn’t true,” Bove said.
Corey Lane resident Rita Finn said she was concerned the town wouldn’t have enough oversight, leading to something the community never attended.
“If there are problems 10 or 15 years down the road, who takes care of that?” Finn asked.
The U.S. Department of Housing and Urban Development says affordable housing is “generally defined as housing on which the occupant is paying no more than 30 percent of gross income for housing costs, including utilities.”
The “2021 Housing Fact Book” from Housing Works Rhode Island indicated that close to 5.2 percent of all the housing in Middletown is classified as “affordable.” In order to meet Rhode Island’s 10 percent threshold for “affordable housing,” the Fact Book said the Town would need to add more than 330 units of low- and moderate-income housing.
Rhode Island Housing data showed the average price for a two-bedroom apartment in Middletown including utilities was $1,724 in 2021. That’s up $279 from 2016, when the average price for the same unit was $1,446.
Document Link: https://www.middletownri.com/DocumentCenter/View/6742/NYCU-AH
####